Skip to main content
Home
Projects
Team
Contact
Home
Projects
Team
Contact
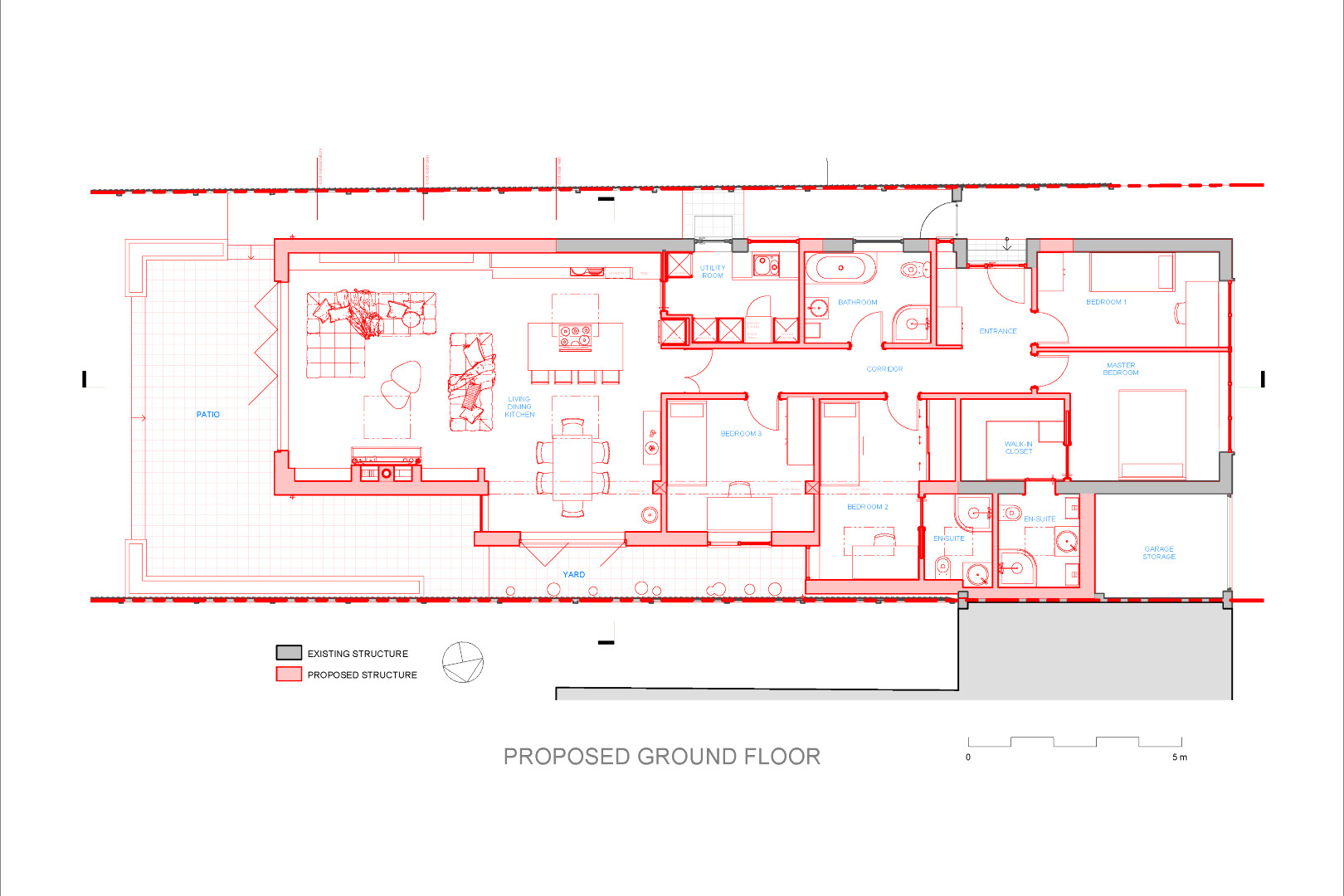
Rear & Side Extension
Rear & Side Extension, Internal Reconfiguration & Complete Renovation